A poco più di tre mesi dall’assegnazione del terreno da parte del Governo federale dello Stato del Tigray siamo in grado di presentarvi il progetto della nuova struttura.
L’idea di progetto, elaborata dall’arch. Manuela Gullone, prevede la costruzione di:
- un edificio principale, per un totale di 270 mq, composto da una grande sala comune, un’ala dedicata ai servizi (cucina, dispensa e lavanderia) ed un’ala destinata ad alloggio personale medico e zona infermeria
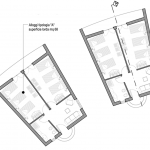
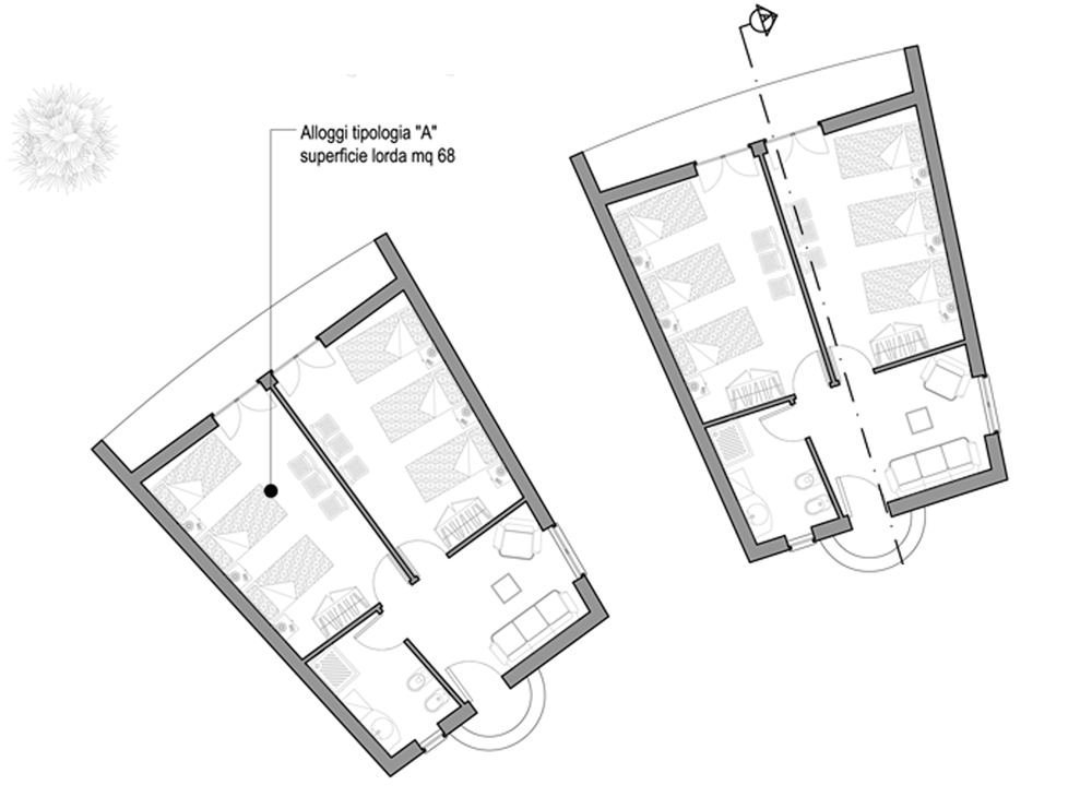
- cinque costruzioni disposte a raggio intorno l’edificio principale di circa 70 mq ognuna che costituiranno gli alloggi per le ragazze e i ragazzi cardiopatici
- una sesta costruzione di circa 100mq per il personale volontario che si alternerà nel centro
- un magazzino di 50 mq
Questo che vedete è lo sviluppo del progetto.
















